📩 Mail Gönder

ABOVE GROUND POLYETHYLENE (HDPE) GREASE WATER SEPARATOR MANUAL


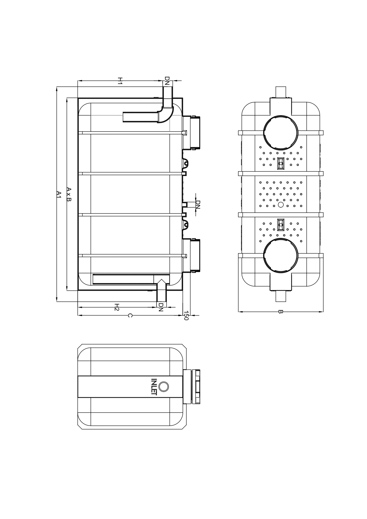
Teknik çizim

product

ABOVE GROUND POLYETHYLENE (HDPE) GREASE WATER SEPARATOR MANUAL

Yerli Üretim

Stok Kodu: 3121

Grease separators, complying with standards such as EN
1825, are essential to prevent severe consequences. They
must be installed whenever wastewater contains vegetable
and animal grease and oil that need to be retained. This
requirement applies to various commercial and industrial
businesses, including:
-Kitchen operations catering establishments
-Restaurants and hotels
-Motorway service stations and canteens
-Butcher shops
-Slaughterhouses
-Oil mills
-Cooking oil refineries
-Canning factories
-Grilling, roasting- frying kitchens
This product is a system designed to separate grease from
both domestic and commercial wastewater in accordance
with EN 1825 standards. Greases referred to here are
substances of vegetable or animal origin, having a density
of less than 0.95 g/cm3 and being partially or completely
insoluble in water. Proper operation necessitates adherence
to disposal and maintenance cycles.

If your business, such as catering or food processing, generates
greasy wastewater, it’s mandatory to install a grease
separator as per regulations. Failing to do so can lead
to the formation of stubborn, foul-smelling deposits in the
drainage system, making removal challenging. Besides fines,
not using a separator can result in costly damages like
pipe blockages, corrosion, and disruptions in wastewater
treatment plants and lifting stations.        
Documents:
Link

Emergency Support

If you have urgent questions, you can call us immediately.