📩 Mail Gönder

Zemin Üstü Paslanmaz Çelik Yağ Tutucu Otomatik


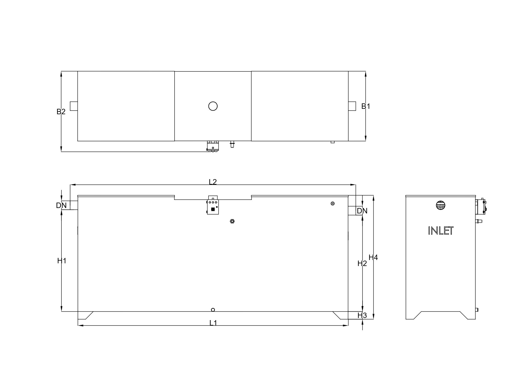
Teknik çizim

product

Zemin Üstü Paslanmaz Çelik Yağ Tutucu Otomatik

Yerli Üretim

Stok Kodu: 1111

EN 1825-1’e uygun, AISI 304 ya da AISI 316 kalite paslanmaz çelik malzemeden imal edilmiş, don tehlikesi bulunmayan
yerlerde zemin üstü (oda içi) kullanıma uygun, entegre tortu ve parçacık tutuculu, kolay çıkarılıp takılabilen temizlenebilir
psalanmaz çelik tortu sepetli, uygun boşaltma tapaları ve vanaları olan, hızlı ve kolay açılıp kapanabilen kapaklı, koku
yapmayan, sızdırmazlığı sağlanmış, yağ seviye sensörü bulunan, ayarlanabilir termostadlı ısıtıcısı bulunan, biriken yağı
dışarı atmak için açık fanlı vortex pompası bulunan, kontrol panosundan bina otomasyon sistemine (BMS); yağ bilgisi, arıza
bilgisi, ısıtıcı bilgisi gönderebilen otomatik yağ ayırıcı..

Metusan, otel, restoran, kantin ve gıda üretim tesislerinde yağlı atık suyun ayrılması için EN 1825 standardına uygun yağ ayırıcılar sunmaktadır. Bu ayırıcılar, organik ve donmuş yağı atıksudan ayırarak kanalizasyona karışmasını engeller. Zemin üstü, mobil veya gömme olarak farklı montaj seçenekleri sunulmakta ve paslanmaz çelik, polietilen veya cam fiber gibi dayanıklı malzemelerle üretilmektedir. Ayrıca, isteğe bağlı yağ tabakası ölçüm cihazları ve Bina Yönetim Sistemi bağlantıları gibi özellikler de mevcuttur.

Yağ ayırıcıların kullanımı, özellikle catering, restoranlar, oteller ve gıda işleme sektörlerinde zorunludur. Bu ayırıcılar, su içinde çözünmeyen ve düşük yoğunluklu yağları etkili şekilde ayırarak boru tıkanıklıklarını, korozyonları ve atık su arıtma tesislerinde kesintileri önler.

Çalışma prensibi yerçekimi ile yağ, su ve çamur arasındaki yoğunluk farkını kullanarak bu maddelerin ayrılmasını sağlar. Düzenli bakım ve periyodik temizlik, sistemin verimli çalışması için gereklidir. Metusan Yağ Su Ayırıcıları EN 1825 standardına tamamen uygundur ve düzenli bakım ile uzun ömürlü kullanım sağlar.

Dökümanlar:
MaterialNS(Lt/Sn)DNTotal Volume (lt)Grease Volume (lt)Link
11111211111100250100
11112211122100504120
11113211133100720150
11114211144100998200
111152111551001232300
111172111771501890450
111192111991502250600
111110211110101502500700
111113211113132003429900
1111162111161620041581100
1111202111202020052801400
1111302111303025072001800

Acil Durum Desteği

Acil sorularınız varsa hemen bizi arayabilirsiniz.